REQUEST A TOUR If you would like to see this home without being there in person, select the "Virtual Tour" option and your agent will contact you to discuss available opportunities.
In-PersonVirtual Tour

Listed by Tracy Hsu • U16818 Financial Services
$ 699,800
Est. payment /mo
Active
826 Indian Rock AVE Berkeley, CA 94707
5,950 Sqft Lot
UPDATED:
Key Details
Property Type Vacant Land
Sub Type Residential Lot
Listing Status Active
Purchase Type For Sale
MLS Listing ID ML81993677
Lot Size 5,950 Sqft
Property Sub-Type Residential Lot
Property Description
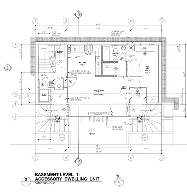
Rare opportunity to build your dream home. Incredible panoramic view lot. Beautiful Bay, Bridges, and City views from this upslope vacant lot in a coveted Berkeley location. No permit for the plans yet.
Location
State CA
County Alameda
Area Berkeley Map Area 1
Zoning R-1H
Exterior
Fence Fenced
Utilities Available Electricity - Available at Street, Gas - Available at Street
View Bridge , City, Panoramic
Present Use 2nd Unit Possible
Building
Lot Description Grade - Hillside, Surveyed
Sewer Sewer Available
Water Public
Others
Tax ID 61-2581-25
Horse Property No
Special Listing Condition Not Applicable

© 2025 MLSListings Inc. All rights reserved.






